Brief Introduction
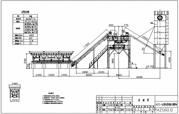
Concrete mixing station is composed of JS1000
china manufacturer concrete mixer, batcher(weighing individually), belt type transmission, automatic control system, mudolar design structure cement silo, screw conveyor,etc.
HZS60 concrete mixing station is suitable to small or medium size project, or commercial concrete factory.
1. JS1000 china manufacturer concrete mixer, which is high quality mixing performance, and high efficiency;
2. Aggregate adopts the batcher, weighing individually, which makes the weighing accurate and efficiency;
3. Water, cement and additive all adopts the weighing by Electronic scales, with high dosing procision;
4. Electrical control system of main components are all imported, reliable performance, easy operation, with the print function.
Features
1. The Productivity of HZS60 concrete mixing station is 60m3/h;
2. Modular design structure;
3. Belt type transmission;
4. Batcher adopts the individual weighing method;
5. Commercial stationary concrete plant;
6. Low cost and high efficiency;
7. Accurate weighing system;
8. Main components imported in Germany or Japan.
Technical Parameters
Discharge Height
m
3.8(for customers choice)
Aggregate Bin Capacity
m3
1.6
Max. Weighing Value of Aggregate
kg
1000
Max. Weighing Value of Cement
kg
800
Max. Weighing Value of Water
kg
350
Max. Weighing Value of Additive
kg
30
Aggregate Measuring Accuracy
%
2
Water Measuring Accuracy
%
1
Cement Measuring Accuracy
%
1
Additive Measuring Accuracy
%
1
Cement Screw Conveyor
_
Optional
Cement Silo Capacity
_
Optional
Control Mode
_
Auto/Semi Control
